Långarör - Norra

Villa i Långarör -

Påbyggnad & Tillbyggnad

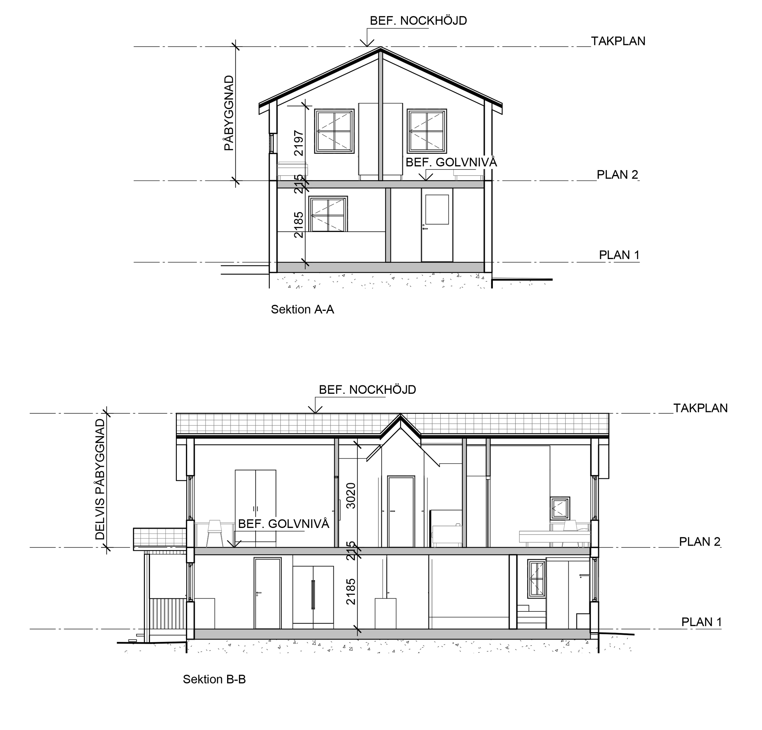
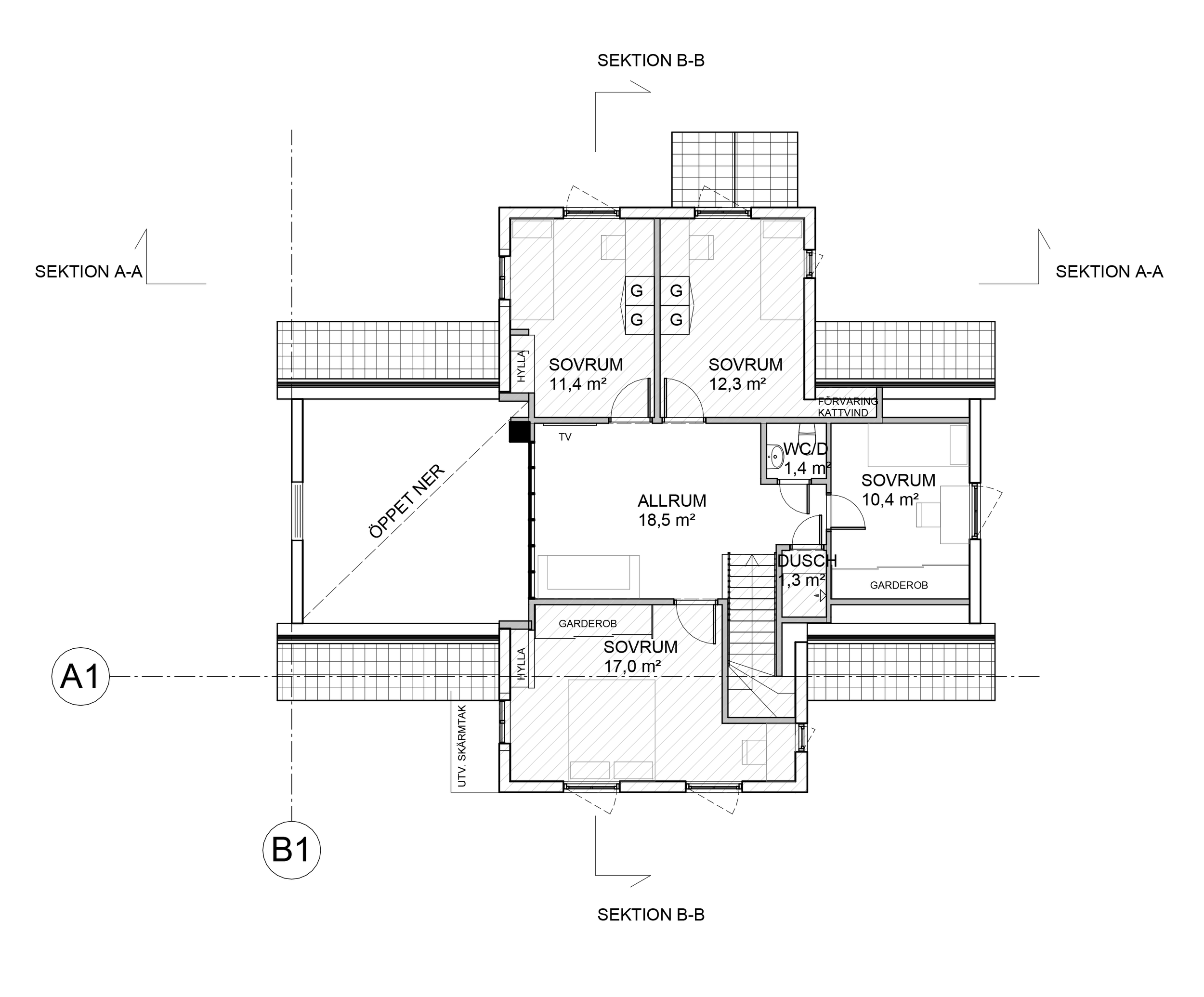
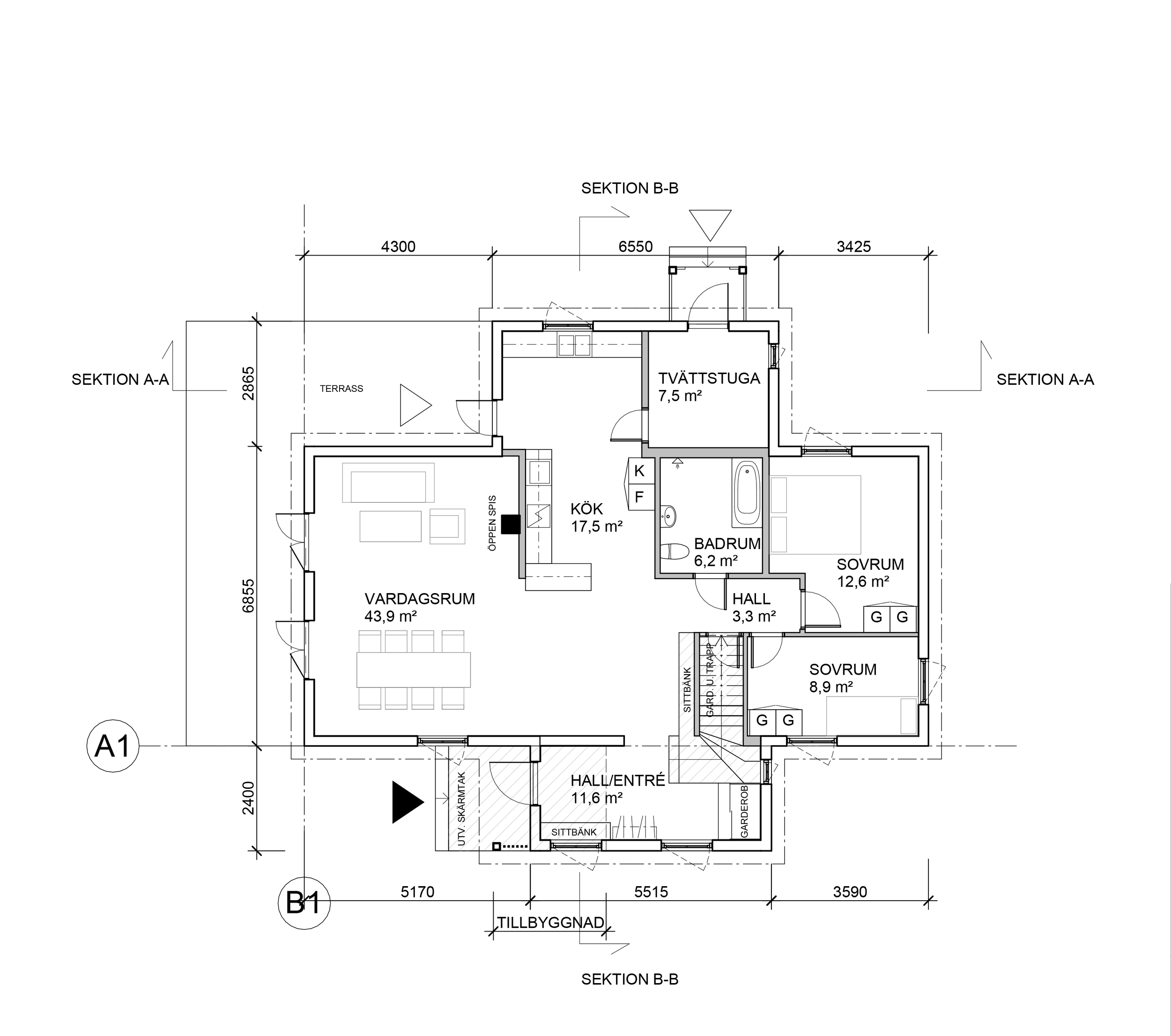
Det befintliga huset förvandlas med en genomtänkt påbyggnad på de befintliga utbyggnaderna som skapar tre nya, rymliga rum och samtidigt ger hela byggnaden ett mer herrgårdslikt uttryck. De nya sovrummen planeras med generösa ytor och smarta förvaringslösningar som harmonierar med husets ursprungliga karaktär.

Som en del av projektet flyttas den invändiga trappan för att öppna upp entrén och hallen. Det skapar en välkomnande, luftig känsla och ger dessutom praktiskt förvaringsutrymme under trappan. Resultatet blir ett hem som känns större, elegantare och mer funktionellt – utan att tappa sin charm.

Bygglovsansökan godkändes våren 2026.

Nästa
Nästa

Åby