Växjö - Åby

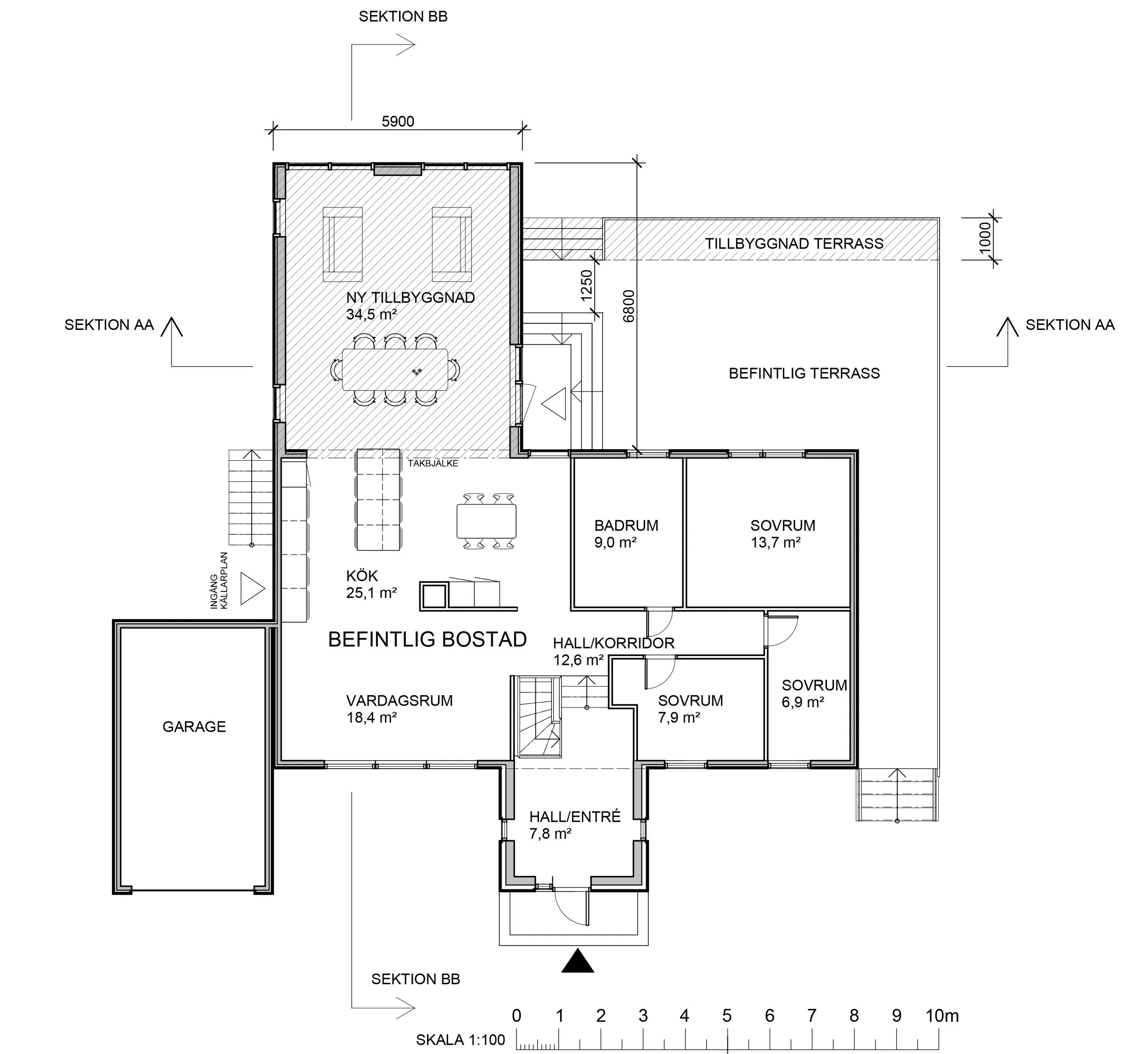
Projektet omfattar en tillbyggnad som förlänger det befintliga köket ut mot Helgasjön och skapar en ljus, modern och rymlig social yta. Tillbyggnaden utformas med stora glaspartier som öppnar upp mot sjön och ger en stark visuell kontakt med omgivningen. Den generösa takhöjden, med öppet till nock, förstärker känslan av rymd och skapar ett luftigt rum med naturligt ljusinsläpp under hela dagen.

Som en del av projektet byggs även en större och mer sammanhållen terrass som knyter ihop ute- och innemiljön. Terrassen utformas för att fungera som en naturlig förlängning av köket och sällskapsytorna, vilket ger bättre flöde och ökad användbarhet under årets varmare månader.

Helheten skapar en harmonisk koppling mellan huset och naturen, där arkitektur, funktion och utsikt samspelar för att ge en modern och inbjudande livsmiljö.

Nästa
Nästa

Långarör