Långarör

Villa i Växjö - Utbyggnad & Påbyggnad

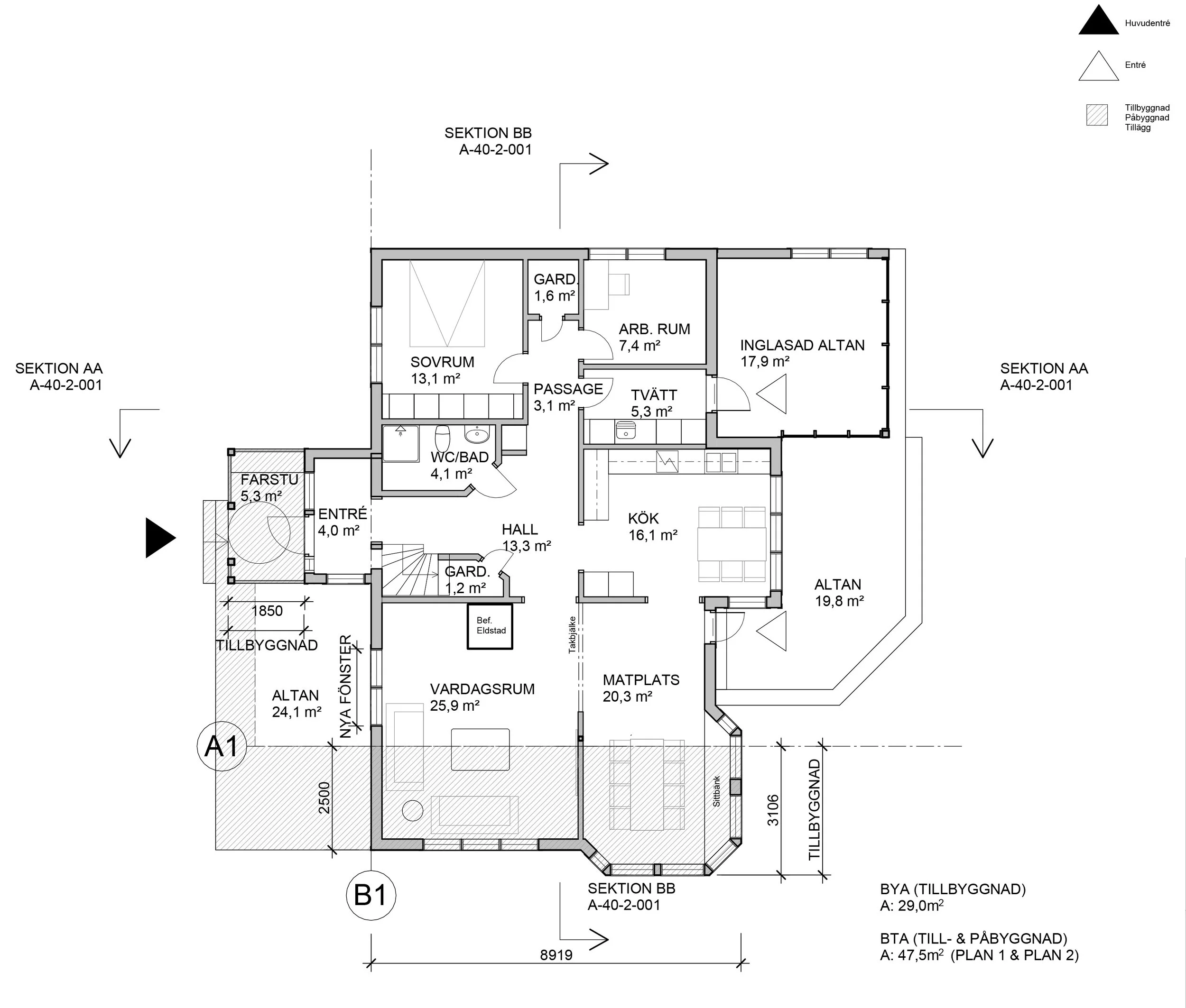
Detta projekt påbörjades under våren 2025. Kundens önskemål var att skapa en rymligare och mer funktionell planlösning genom att flytta ut den befintliga ytterväggen med 2,5 meter. På entréplanet innebär utbyggnaden ett större och luftigare vardagsrum samt ett generöst matrum. Det befintliga burspråket, som är en viktig del av husets karaktär, följer med i utbyggnaden. Det får dessutom en större yta som skapar en inbjudande matplats, kompletterad med fler fönster som ger ett härligt ljusinsläpp och förstärker husets arkitektoniska uttryck. En generös farstu byggs utanför den befintliga entrén, utformad som en välkomnande plats där man kan slå sig ner och ta en paus innan man kliver in.

På övre plan skapas möjlighet för ett större sovrum och en mindre arbetsplats. Även en påbyggnad ovanför det befintliga köket planeras där ett rymligt tv‑rum ger möjlighet för mer ljusinsläpp på övre plan.

Bygglov beviljades våren 2026, och bygget drar igång i maj 2026.

Nästa
Nästa

Växjö - Norr