Växjö - Norr

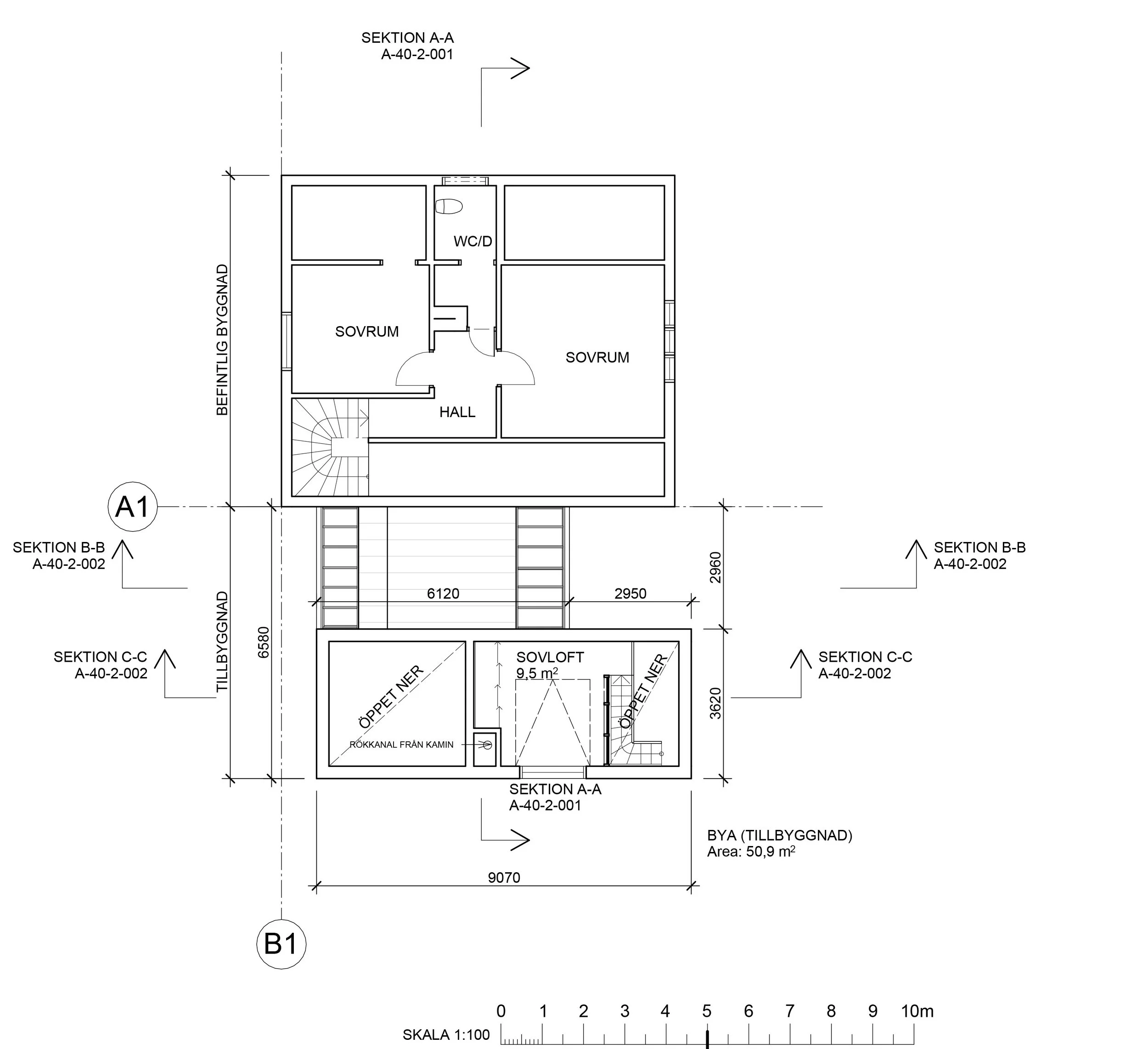
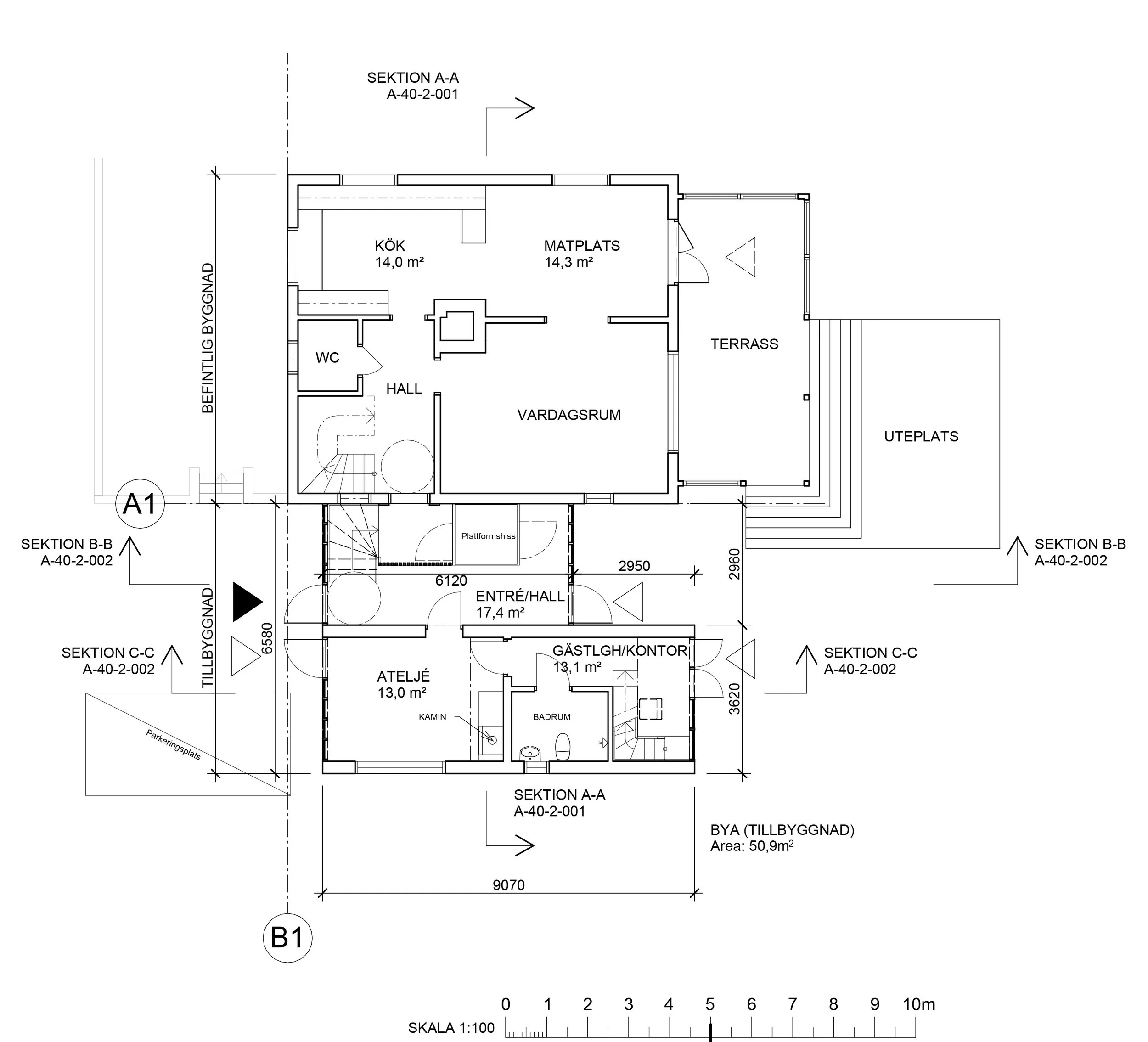
Det gamla garaget rivs för att ge plats åt en ny tillbyggnad som rymmer ateljé, gästhus och en rymlig, ombonad entré till bostadshuset. Resultatet blir en välkomnande och funktionell helhet där både kreativt arbete, gäster och vardagsliv får generöst med utrymme.

Bygglov beviljades hösten 2025, och bygget drog igång våren 2026.

Villa i Växjö - Tillbyggnad

Föregående
Föregående

Långarör

Nästa
Nästa

Lillstugan